总工委员会
行业动态
预制化木骨架组合墙体技术应用实例
来源:admin 浏览量: 发布时间:2022-08-30 15:25:27
木骨架组合墙体是以规格材制作的木龙骨,外部覆盖纸面石膏板,在木龙骨间填充保温、隔声材料制作的非承重墙体。
根据GB/T 50361—2018《木骨架组合墙体技术标准》规定,木骨架组合墙体可用于住宅建筑、办公建筑和丁、戊类厂房(仓库)建筑中的钢筋混凝土框架结构(或钢框架结构)中的非承重墙体。当木骨架组合墙体应用于非承重外墙时,建筑层数应在6层之内。当木骨架组合墙体用于非承重内墙时,建筑层数应在18层之内,且房间建筑面积在100㎡之内。
非承重木骨架外墙盛行于二战后的欧洲,当时欧洲尤其是北欧各国面对世界能源危机开始推广这一新型的节能墙体系统,该系统优异的保温节能性能、快捷的施工速度和经济的造价使其很快风行欧洲各国。该技术于21世纪初期引进我国,第一本适用的标准规范GB/T 50361—2005《木骨架组合墙体技术规范》于2006年3月1日正式实施。
天津中加生态示范区贝湾科技大道 · 枫创产业园。3栋建筑(图1)主体结构采用传统钢筋混凝土结构。外围护非承重墙体采用装配式木骨架组合墙体,3栋楼总建筑面积约11000㎡,外围护墙体面积超过5000㎡,根据外围护墙体的设置需求,拆分为400余片墙体,单片预制墙体最大为4200mm×407mm最小为1065mm×3600mm。全部墙体在工厂预制加工,运送至现场安装。

图1 项目全景图
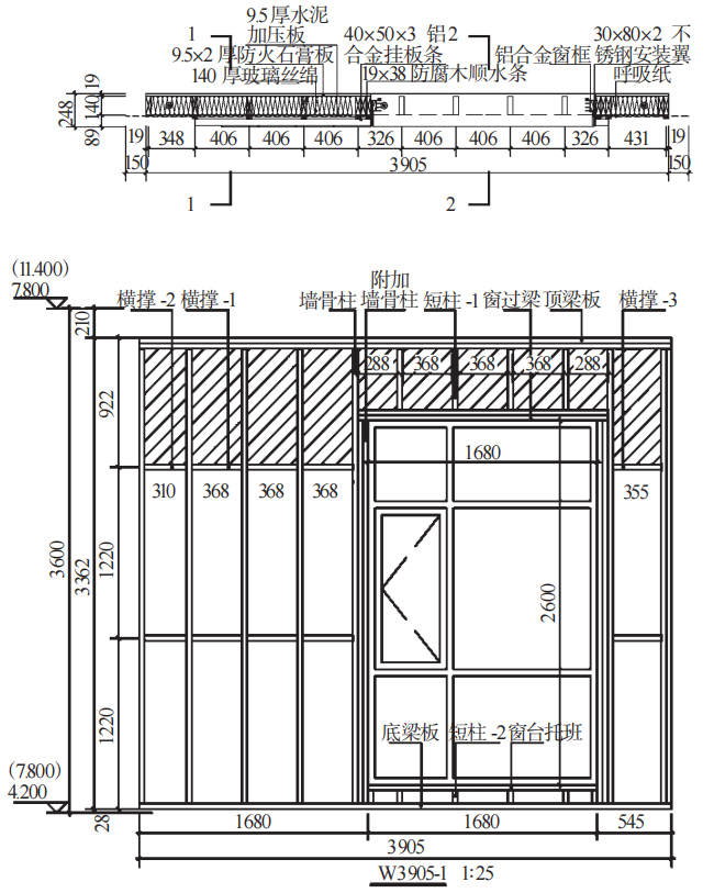
墙体的基本构造层次(从内至外)为:防火石膏板12 mm厚→SPF木龙骨(38 mm×140 mm)→玻璃丝绵140 mm厚→水泥加压板9.5 mm厚→呼吸纸→防腐木顺水条9 mm×38 mm→铝合金挂板条40 mm×50 mm×3 mm→厚仿木纹水泥纤维挂板9.5 mm。
用作建筑外墙的木骨架组合墙体由内至外依次为结构墙体、泛水板和由呼吸纸、防腐木龙骨、防虫网及外装饰面板形成的防雨幕墙系统。呼吸纸故又名“单向透气膜”透气性能和防水性能优良,其表面有极细小的微孔,水蒸气可自由地通过,而水滴和液态水因表面张力作用无法通过,防雨幕墙系统可有效隔绝雨水,为墙体提供通风层,使建筑主体保持干燥,建筑耐久性也得到提升。
1 项目设计
1.1 挑檐设计
本项目墙体连接节点如图2所示。混凝土边梁悬挑一段长180 mm的混凝土板,板厚150 mm作为上部墙体支座,悬挑板与混凝土梁同时浇筑。墙体荷载按照折算线荷载施加在板面,板面按最不利组合配筋。悬挑板现浇阶段在相应位置预留对穿套筒以方便后期安装墙体固定螺栓,套筒间距1.4 m。

图2 墙体连接节点示意
1.2 木骨架组合墙体设计
木骨架组合墙体由外部覆盖墙面板和规格材制作的木骨架组成,非承重隔墙在墙面板与木骨架构件间的空隙内填充保温隔热材料。
木骨架组合墙体主要是由木骨架承受和各种水平荷载和自身的竖向荷载,通过连接件传递到主体结构,用作混凝土结构中的非承重填充墙。
木骨架组合墙体与轻型木结构的墙体相比其承载体系、构造要求、连接要求等都有所不同,应严格区别。
木骨架组合墙体主要特点有:布置灵活机动,可根据使用需求分隔房间,布置墙体不受主体结构构件限制;其作为填充墙自重轻,可减小主体结构承受的荷载,有利于抗震,减少主体结构费用;墙体保温性能和隔声性能好;构件可采用工业化预制生产,也能在现场制作,施工方法灵活。
按GB/T 50361—2005《木骨架组合墙体技术规范》规定,木骨架组合墙体适用于办公楼、住宅建筑和丁、戊类工业建筑非承重墙体的设计、施工、验收和维护管理,木骨架组合墙体可用作6层及6层以下办公楼和住宅建筑的非承重外墙和房间隔墙,以及房间面积不超过100 ㎡的7~18层普通住宅和高50 m以下的办公楼的房间隔墙。
由于木骨架组合墙体只能达到难燃级,故其使用范围限制为普通住宅建筑和火灾荷载与住宅建筑相当的办公楼。
由于丁、戊类工业建筑主要用于使用、储存和非燃烧物质或加工难燃烧,其火灾危险性相对较低,故允许作为其非承重外墙和房间隔墙。
木骨架组合墙体安全等级定为二级,其全部木构件的安全等级亦为二级。除自重外不承受竖向荷载,也无任何支撑功能,用作外墙时还应承受风荷载,与主体连接应进行抗震设计。
1.3 外围护做法
外围护墙体设2道防水层,用来保证整个建筑物不受雨水的侵蚀。第一道为“防雨幕墙”系统,由外挂板和连续铺设的防水布及顺水条组成;第二道为铺设在墙体覆面板外侧的呼吸纸。
呼吸纸是一种单向透气的防水材料,可有效阻挡雨水侵蚀,但允许墙体内部的水蒸气通过,保证内部空气循环。
1.4 墙体拆分及编号
墙体加工图如图3所示。每片墙体均附有相对应的拆分图。拆分图的内容包括墙体尺寸、门窗洞口尺寸,单根规格材的尺寸和长度,以及与主体结构连接的锚栓布置。


图3 墙体加工示意
2 墙体预制
在距项目约500 m位置设置临时预制工厂,依据木骨架组合墙体的预制工序需求,工厂的功能区设置为材料预切割区、墙体龙骨组框作业区、外围护部件安装区和成品储存区。
考虑生产动线和产能组织时,结合各工序生产效率的区别,安排设备、生产材料、工人,协调各工序配合以达到高效率生产(图4)。

图4 墙体在工厂内预制
墙体预制过程中,施工人员的思路应从现场加工模式转化为工厂预制模式,配合工厂的设备及物料组织形成流水线作业,体现工厂预制的高效率优势。
为控制预制构件产品质量,应确认各岗位的职责,实施岗前培训,生产过程记录,出厂产品检查。
考虑各方因素,采取半开放墙体,即在工厂内将墙体外侧完成安装至外装水泥纤维板,内侧至完成墙龙骨柱。对需填充保温隔热材料和内侧石膏板处(考虑部分位置现场难以安装操作)可提前在工厂内完成安装,并完成窗户框体安装。
墙体预制工作在混凝土框架结构完工前两周开始,分栋、分层组织生产,要注意工厂的生产进度与现场安装施工的速度应协调,以形成高效统一的施工组织配合。
3 现场墙体安装
预制完成的墙体按施工模拟安装顺序运至现场后即可进行吊装,吊装由每个立面一端开始,按垂直方向以4层为一组依次安装。
3.1 墙体吊装准备工作
(1)勘探现场条件,确定起重机位置,由于建筑下方为地下车库顶板,故需计算起重机停靠点的载荷,以免发生生产安全事故。
(2)找平混凝土楼板层,复核混凝土楼板预留孔洞位置,将调整安装误差的位置设在每层最后吊装一块的墙体。
(3)组织安装工人参与技术和安全培训。
3.2 木骨架组合墙体与混凝土连接节点处理
木骨架组合墙体与混凝土楼板连接时,采用专业设备在楼板上的特定位置开18孔,再用M16螺钉连接上下相邻两层的墙体。在混凝土与木结构底梁板连接处铺泡沫防潮垫,端头封堵40 mm厚岩棉。
3.3 木骨架组合墙体间水平向的连接处理
拼接水平向墙体时,先拼接端部木龙骨,再斜向钉入通长钉,在墙体间预留宽5 mm的缝隙,以防因湿度变化导致木框架胀缩造成接缝处挤压变形。
3.4 木骨架组合墙体垂直向安装
本项目外装材料采用竖向安装水泥纤维板,单片板宽280 mm,板间隙为5 mm,故在竖向安装一组墙体时,需有较高的安装精度,使板缝在垂直向连续贯通,以保证建筑外立面效果(图5)。

图5 预制墙体吊装
4 运行数据监控
为使本项目完工后建筑运行数据监测方便,与加拿大阿尔伯塔大学合作在三号楼中安装了Omnisense无线监测系统,该系统由4个网关和100个针状WME(Wood Moisture Equivalent)传感器组成,无线网关通过互联网将传感器数据发送到服务器,使用者可通过服务器查看建筑运行数据。该无线传感器集成了无线收发器、温度传感器、湿度传感器和针式(电阻)湿度计。传感器测量的相对湿度从0%~100%(非冷凝)。温度测量范围为–40℃~85℃。
传感器安装在墙板内部的不同位置,特别是在由于雨水、低通风和受盛行风影响而更易发生潮气积聚的区域。利用已开发的监测系统收集的数据将用于调查和评估木结构组合墙体的温度、湿度和含水率;该系统还可测试墙体对不同季节天气状况的反应,并比较在不同季节的影响下,建筑内部不同位置墙体的运行表现。
监测系统提供的数据可用于指导后期产品维护,为木骨架组合墙体体系研究、项目碳排放数据提供论据。
5 木骨架组合墙体技术的应用展望
装配式木骨架组合墙体技术,对提升建筑的预制装配率、减少现场施工时间、全干作业、提升建筑节能性能、材料的集约度和降低成本等方面具有一定的优势。在未来建筑市场扩大应用范围,需加强关注如下。
(1)目前该技术可用于住宅、办公楼和丁戊类厂房,随技术完善和经验的累积,可在国家标准规范体系内论证将其用于更高的建筑层数、更广泛的建筑种类中。
(2)由于装配式木骨架组合墙体自重轻,可对基础设计进行改进。木材强重比较高,木骨架组合墙体产品自重比其他产品轻,故应充分考虑对基础压力的减少,使基础造价更为经济,物料更为节约。
(3)目前木骨架组合墙体的应用实例较少,导致市场接受度、建筑监管部门的认知度不足,应加大市场推广力度,争取更大规模的应用。
来源:建筑技术杂志社公众号
如有侵权请联系删除