总工委员会
行业动态
装配式混凝土木混合结构体系简述
来源:admin 浏览量: 发布时间:2022-08-30 15:30:54
建筑工业化起源于二战后的欧洲,由于二战中房屋大量损坏,劳动力不足,传统建筑的数量满足经济复苏的要求,且施工效率很低,不能解决对房屋增长的迫切需求,在这种情况下装配式建筑应运而生。
我国于20世纪50年代在苏联的帮助下将装配式建筑应用于实践,1959年建成的北京民族饭店首次使用预制装配式框架剪力墙结构。2008年以来,随着劳动力成本的上升,我国工业体系的发展日益成熟和对建筑功能及质量的要求提高,装配式建筑因其高效率、高质量、高可控性等优点成为发展的重点,近年来我国已经形成了一些装配式结构的技术体系和技术标准。
在装配式结构的发展过程中,各国根据各自国情走上了不同的道路。日本因地震频发,其装配式结构的发展重点为低层的住宅木结构,美英以钢-混凝土混合结构体系为主。我国是人口大国,在全世界范围内人均资源占有率排名靠后,所以我国的装配式结构发展应着重考虑节约和环保问题。装配式混凝土木混合结构体系以预制混凝土构件做承重部分,木结构做围护结构和次承重结构,这种体系安全、高效、环保,木材又是可再生材料,所以装配式混凝土木混合结构体系的出现和发展对我国绿色建筑的发展具有很大的借鉴作用。
1 装配式混凝土木混合结构的技术特点
混凝土木混合结构是一种混合承重的结构形式。通常以混凝土构件为主要承重部分,木结构为次要承重,其结构形式包括上下混合混凝土木结构和混凝土核心筒木结构等。如商场、餐厅厨房、车库等需下部大空间或对防火有较高要求的建筑物,可采用上下混合形式的木结构建筑结构,将钢筋混凝土结构用于建筑物下部,而上部则采用木结构,这种结构形式可有效地在保证建筑可靠性的基础上减轻上部自重,从而减小下部混凝土的用量。
对于多高层木结构建筑,由于整体建筑结构承受的荷载增大,可采用其他材料的结构构件承受一部分荷载。例如在混凝土核心筒木结构中,核心筒周边等次要结构可采用木框架结构、木框架支撑结构等。在混凝土混合结构体系的基础上,充分利用我国发达的工业体系基础,工业化制作结构构件,以缩短建筑工期,节约人力等成本。
2 工程概况
上海电气研砼(如皋)建筑科技有限公司建筑工业化智能创新基地项目办公楼,位于江苏省如皋市,按GB 50352—2005《民用建筑设计通则》的标准,该地区属于夏热冬冷地区。项目的总建筑面积为2 034 ㎡,高9.6 m,共2层,首层层高4.2 m,第二 层层高4.7 m。建筑结构主体为采用预制混凝土框架结构,木骨架组合墙体做围护结构,其中混凝土框架结构的预制构件梁、柱、叠合楼板、楼梯等均在工厂预制;作为墙体的木骨架体系可在工厂预制,然后运至现场组装。
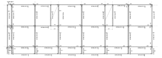
该项目轴网设计为标准9 m跨度、8 m进深。采用预制柱、叠合梁、预制预应力空心叠合楼板、预制楼梯等部件(图1、图2)。

图1 预制柱平面布置(计算机截图)

图2 叠合梁平面布置(计算机截图)
本项目主体结构采用装配式混凝土结构,木骨架组合墙体用于外围护结构,不承重。木骨架组合墙体轻质、环保、造价低,可在广泛用于现阶段的中、高端住宅、办公楼中。
木骨架组合墙体是由15 mm厚防火石膏板、38 mm×140 mmSPF(2级或以上)内填保温岩棉、9.5 mm厚OSB、呼吸纸、15 mm×38 mm顺水条、5 mm厚饰面板挂件、16 mm厚水泥装饰板构成(图3)。

图3 木骨架墙体构造
装配式混凝土木混合结构体系的预制构件在工厂生产后运至施工现场组装,预制混凝土构件与木骨架墙体的组合如图4所示。

图4 预制混凝土构件与木骨架墙体的组合
3 连接方式
3.1 预制混凝土构件间的连接
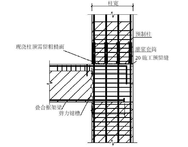
本项目中预制混凝土构件间的连接主要是下层现浇柱与上层预制柱之间及梁柱间的连接。
下层柱在现场现浇后,通过全灌浆套筒与上层预制柱连接为整体。
梁柱间的连接分为中间层的连接和顶层的连接,两种连接的钢筋锚固形式不同(图5)。

(a)

(b)

(c)
图5 梁柱连接做法
(a)叠合梁–预制柱连接中间节点;(b)叠合梁–预制柱连接边节点;(c)叠合梁–预制柱顶层连接边节点
预制梁和预制楼板的连接分为楼板侧边和端部与梁的连接(图6),在连接完成后浇混凝土成为整体。

(a)

(b)
图6 预制梁和预制楼板连接做法
(a)预制预应力空心楼板侧边与预制梁连接;(b)预制预应力空心楼板端部与预制梁连接
3.2 木骨架组合墙体间的连接
木骨架组合墙体不承重,墙体间通过滑动卡扣连接,现场安装高效且简单可靠,其连接方式如图7所示。

图7 木骨架组合墙体连接示意
3.3 木骨架组合墙体与主体混凝土结构的连接
主要采用连接件连接主体结构的柱和楼板木骨架墙体和在梁、板就位后即可安装连接件充当现浇层的模板,然后现场浇筑楼板。
该做法可有效减少模板用量,提高施工效率。施工过程中,可在连接件外侧加保温、防水材料,确保整个墙体系统的整体性。其中,连接件与混凝土和木墙体之间,则分别采用化学螺栓和木螺钉进行连接。
4 装配式混凝土木混合结构体系的优势
4.1 工业化生产有利于确保建筑质量
装配式的建筑是通过统一的设计,根据图纸绘出建筑所需的各部分[5]。装配式结构在工厂预制各受力构件运至现场后拼装成完整的受力结构体系。这种方式使建筑建造模式完成了由“工地”到工厂的改变,由于每个构件均采用模板式建造,可使建筑结构的每一部分都得到精细化保障,确保建筑结构的质量。
4.2 发挥混凝土和木材各自优点
在混凝土及钢材出现前,传统的建筑以木材为主要的建筑材料。其原因是木材取材方便,成本较低,但木材的强度不高,不能用于建造高层建筑。而混凝土木混合结构体系,融合了混凝土结构和木结构各自的优点,具有很大的发展潜力。
4.3 有利于缩短施工周期
装配式混凝土木混合结构体系是近年技术发展的结果,同时具有装配式工业化生产的高效和混凝土木混合体系的优良性能,表1为几种结构体系的施工周期比较。
表1 几种结构体系的施工周期比较 d

由表1可见,装配式混凝土木结构体系施工周期短且节约人工。
4.4 绿色环保
木材是一种环保的可再生建筑材料,据北京工业大学材料学院环境材料与技术研究所的报告显示,在用于建筑领域时,木材生长、加工和运输相关过程中的CO2排放分别为–55 862.4 kg, 12 253.3 kg, 29 895.6 kg。在建造建筑物总的生命周期内CO2排放量为–13 713.5 kg,证明木材的全生命周期是低碳环保的。
合理使用木材,应用混凝土木混合结构体系可有效降低建筑工程全周期的碳排放量,符合国家对绿色建筑的要求,符合可持续发展的理念。
5 结束语
装配式混凝土木混合结构是一种新型的建筑结构体系,发展装配式绿色建筑是目前的主流。
与传统的建筑建造方式相比,装配式混凝土木混合结构有利于提高建筑质量且安全、高效、高效益、节能环保,可解决房屋建造过程中设计、生产、施工管理相互脱节、生产方式落后等问题。
与传统矿石资源相比,木材是难得的环保可再生资源,只要利用有度,就可以实现可再生与可持续发展。
我国建筑行业目前面临劳动力成本高、技术工人短缺、资源不足、环境破坏严重等问题,发展装配式建筑技术是我国建筑行业的必然选择,装配式混凝土木混合结构体系将会为建筑市场带来革命性的改变。
注:本文图1~图3、图7来源于如皋建筑工业化智能创新基地项目图纸。
来源:建筑技术杂志社公众号
如有侵权请联系删除