行业动态
落地式卸料平台该如何施工
来源:admin 浏览量: 发布时间:2022-09-29 15:04:54
1 工程概况
某别墅项目地下一层,地上三层,单体建筑面积约500 ㎡,建筑高度约10 m左右,一层层高3.3 m,二层层高3 m。结构类型为框架结构,基础形式为筏形基础,局部土质较差处为桩基础。
2 卸料平台设计
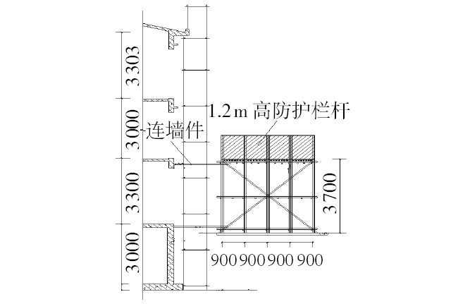
落地式卸料平台采用钢管脚手架,每栋在二层、三层楼面位置各搭设一个(图1),平台标准尺寸为3.6 m×2.7 m,但可以根据现场情况进行适当调整,平台最大尺寸不超过10 ㎡,架体采用48×2.7 m钢管搭设,立杆纵横向间距均不超过0.90 m,立杆步距不超过1.8 m,立杆采用双立杆,与每个楼层均设置连墙件,架体四周设置剪刀撑,同时设置水平剪刀撑,扣件连接形式为双扣件,板底支撑间距为300 mm。平台顶部设置1.2 m高防护栏杆,操作平台上满铺方木和模板,防护栏杆内侧面钉模板,悬挂限载标志牌,限重1 t。

(a)

(b)

(c)
图1 卸料平台示意
(a)卸料平台平面示意;(b)二层楼面位置卸料平台立面示意;(c)三层楼面位置卸料平台立面示意
3 卸料平台搭设
(1)卸料平台搭设前场地分层夯实,面层浇筑100 mm厚C15垫层,并做好相关排水措施。
(2)立杆采用双立杆,立杆下部要垫模板,扫地杆离地200 mm,立杆纵横向间距均不超过900 mm,步距不超过1 800 mm,根据搭设总高度进行适当调整,保证结构层和卸料平台操作层基本保持同一高度,方便转运材料。扣件用电动扳手上紧后要用手动扳手进行复拧,确保拧紧力矩在40~65 N·m范围内。
(3)沿架体四周满打垂直剪刀撑,在架体中间位置加设水平剪刀撑。
(4)架体连墙件单独与主体结构进行刚性连接,从第一步开始设置,严禁与外脚手架或内排架进行连接。
(5)卸料平台顶部铺设钢管和方木,然后铺上模板,落地式卸料平台三面搭设1 200 mm防护栏板,用模板进行封闭。
(6)架体和封闭栏板均涂刷油漆。
(7)在落地式卸料平台上悬挂限载标志牌和验收牌。
4 卸料平台使用和拆除
(1)落地式卸料平台使用前要经过验收,同时进行荷载试验,各项指标达标后方可使用。
(2)使用过程中严禁超载,严禁攀爬,严禁随意抛撒材料。
(3)严禁私自拆除落地式卸料平台连墙件。
(4)拆除落地式卸料平台前在周围设好警戒线,同时安全员全程跟踪指挥。
(5)从上到下依次进行拆除,连墙件最后拆除,拆除的钢管扣件用塔式起重机吊至指定地点,严禁随意抛掷。
来源:建筑技术杂志社公众号
如有侵权请联系删除