行业动态
古建筑修缮施工电梯钢框架附着施工技术
来源:admin 浏览量: 发布时间:2023-02-28 11:31:06
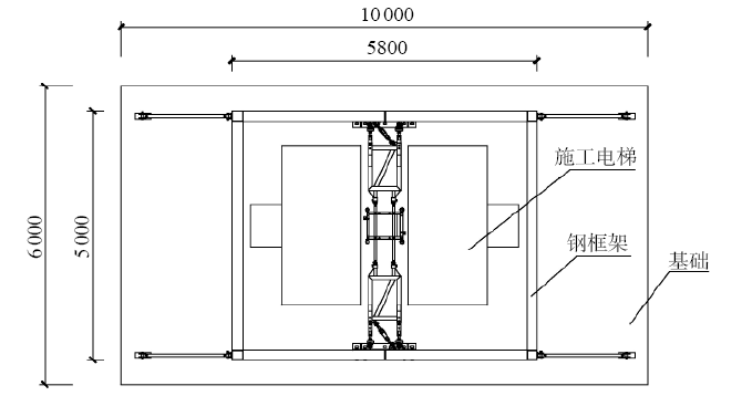
某城楼及城台修缮工程位于北京市中心,城台外墙长180 m,宽40 m,高13 m。为满足人员上下及物资垂直运输的需要,在城台东侧布置1台SC200/200G型变频施工升降机,在施工电梯外围安装独立的钢框架用于与城墙的附着(图1)。

图1 施工电梯与钢框架平面位置
1 钢框架设计方案
钢框架及施工电梯基础尺寸为10 m(长)×6 m(宽)×0.4 m(厚),基础混凝土强度等级为C30,配双层双向Ø12@200钢筋。钢框架平面尺寸为5.8 m×5 m,共5层,总高16.3 m,首层高4.3 m,2~5层均为3 m。钢框架由立柱、横腹杆、斜腹杆和斜拉杆组件组成。立柱与横腹杆均为□200×200×8.0方管,斜腹杆为□100×100×8.0角钢,斜拉杆组件由□60×60×3.5的支撑管和□70×70×3.5的方管通过M21螺栓连接而成,各杆件材质均为Q235B(图2)。
图2 钢框架构造
立柱与基础通过M24地脚螺栓固定,各杆件均通过M16螺栓连接,在钢框架外侧设4道斜拉杆,斜拉杆与立柱在7 m高处固定,另一端与基础预埋连接座栓连接。施工电梯设于钢框架内部,通过3道附着杆与钢框架拉结,设置在标高4.633 m,10.627 m,15.984 m,其中部用螺栓固定在电梯导轨标准节上,两端用螺栓固定在钢框架横腹杆上。
钢框架及电梯安装流程:深化设计→钢构件加工→基础施工→钢框架立柱安装→钢框架横腹杆安装→钢框架斜腹部杆安装→钢框架斜拉杆安装→施工电梯安装→附着杆安装。
2 安装施工
2.1 深化设计
钢框架杆件加工前,先对钢框架和施工电梯的附着进行深化设计。先根据垂直运输要求,确定钢框架总体高度、附着杆数量及附着高度,再根据确定的施工电梯型号及使用期间的荷载对基础、预埋件、各杆件和连接螺栓的规格尺寸,以及斜拉杆斜拉高度进行深化设计。通过有限元分析(FEA)软件,在最不利荷载下对钢框架、导轨架的强度和稳定性进行验算,并根据验算结果调整相关构件的规格和尺寸。
2.2 钢构件加工
钢结构根据深化设计图在工厂加工并进行防腐防锈处理。
2.3 电梯基础施工
电梯基础尺寸为10 m×6 m×0.4 m(长×宽×厚)如图3所示。
(a)
(b)
图3 电梯基础
(a)平面图;(b)剖面图
配双层双向Ø12@200钢筋,混凝土强度等级为C30。基础中间部位和南北两侧埋有400 mm×400 mm×12 mm钢板预埋件配置4根带弯钩的M24地脚螺栓,下部埋入混凝土300 mm,上露螺丝长度为100 mm(图4)。
(a) (b)
图4 电梯基础预埋钢板构造
(a)预埋钢板平面图;(b)地脚螺栓
电梯基础的施工顺序为:测量放线→绑扎钢筋→安装模板→安装预埋螺栓,复核→焊接固定螺栓→浇筑混凝土。
2.4 安装第一节钢框架立柱
施工顺序为:安装调整螺母并调整其标高→钢柱吊装就位→复核柱脚板顶面标高→调整柱垂直度→固定调整螺母并拧紧→柱脚板灌浆。
(1)主弦杆(立柱)安装时,先在4个预埋螺栓上旋入调整螺母并调整其顶部标高至柱脚板下部标高,将钢柱吊至调整螺母上,再复核并调整柱脚板顶标高,使用平尺、磁力线坠微调不同方向上的调整螺母,以调整钢立柱垂直度,调整完成后将调整螺母向柱脚板方向拧紧。
(2)主弦杆调整完成后需及时浇筑柱脚板灌浆层,灌浆层预留厚度为35 mm,即不小于调整螺母厚度+10 mm。灌浆材料采用流平性能较好的C50微膨胀高强度灌浆料,基础外表面(即灌浆模板内表面)与柱脚板外缘之间须留有适当间距(40~60 mm),以保证灌浆层的强度和密实度。
(3)上下2层立柱之间采用M16螺栓连接。
2.5 钢框架横腹杆安装
在横腹杆两端预先焊接连接钢板,将连接板与立杆螺栓孔对准后穿入M16螺栓,拧紧螺母并锁紧螺母(图5)。横腹杆与横腹杆间、横腹杆与立柱间连接均采用M16螺栓。
图5 钢框架横腹杆连接做法
(a)横腹杆与横腹杆连接;(b)横腹杆与立柱连接
2.6 钢框架斜腹杆及斜拉杆安装
斜腹杆与横腹杆侧面连接板采用M16螺栓连接。斜拉杆组件由大小不同的方管支撑管通过中部的螺栓连接而成。拉杆一端与主弦杆连接座在工厂已焊接于钢框架立柱上;另一端通过螺栓与预埋在混凝土基础上的斜拉杆连接座连接。斜拉杆可通过旋转支撑管调节到合适的长度()。
图6 斜拉杆及调节装置
2.7 施工电梯与附着杆安装
施工电梯安装与常规施工电梯安装方法相同。施工电梯的导轨架接高时,按国家标准规定若超过9m需安装附墙架,但为保证导轨架整体稳定和垂直度,在标高4.633 m, 10.627 m, 15.984 m处,放3道附墙架。
(1)以导轨架上的螺栓孔定位,采用长90 mm的M16螺栓将附墙架的前小架固定在导轨架上,两端后附墙脚长255 mmM24螺栓直接安装在钢框架横腹杆预留洞上,锁紧螺母。
(2)调整导轨架与附着杆之间的距离,适当移动附着杆以调整导轨架的垂直度。调整后紧固调整螺栓,缓慢启动电梯,确保吊笼及配重不与附着杆件相碰撞。
3 结束语
在古建筑修缮工程中,施工电梯以独立的钢框架作为附着结构,无需要建筑物进行附着,可避免由振动或附墙杆拉力对古建筑造成的破坏,保护古建筑本体,解决了施工电梯附着困难的问题。经有限元分析(FEA)软件验算及使用期间的检测,该钢框架安全可靠,具有较高的强度、稳定性和抗倾覆能力,各杆件均采用螺栓连接,安装方便快捷。附着杆不与墙体附着,可避免该部位施工滞后,可保证墙体施工连续,节约工期。
来源:建筑技术杂志社公众号
如有侵权请联系删除