行业动态
深基坑护坡桩垂直安全防护施工技术
来源:admin 浏览量: 发布时间:2023-02-28 11:47:33
北京市通州区运河核心区04地块高层建筑地下3层,地上3~33层,建筑面积102 774㎡,为框架剪力墙+劲性结构,其基坑西侧护坡桩长23 m,桩距1.3 m,护坡长度达132 m,护坡桩顶设3 m高、370 mm厚的砖混结构挡土墙。
1 施工难点
(1)04地块基坑已于2017年7月全部挖至距坑底1 m处,后历时3年地下室部位未及时回填,护坡桩及桩间护壁结构长期外露,受环境影响。局部桩间护壁混凝土开裂,缝隙中长出小草与灌木,局部桩间土开裂滑落。
(2)由于基坑较深且坑内垫层已施工完成,基础结构抗浮锚杆密集,又受桩间钢腰梁、预应力锚索及护坡桩顶部挡土墙的影响,桩间土防护施工难度大。
2 主要施工措施
2.1 硬防护及钢管脚手架搭设与连接
施工前进行现场复测,确定脚手架搭设位置及相关参数。选用落地式双排钢管脚手架,架体基础位于肥槽底及挡土墙外侧,架体横距900 mm,步距1 500 mm,纵距1 500 mm,搭设至冠梁顶部以上1 200 mm。
每3步3跨设一道连墙件与护坡桩连接,护坡桩上植2根 10膨胀螺栓,并用150 mm×150 mm×6 mm钢板与 48钢管焊接形成连墙件。连墙件与脚手架立杆及横杆交叉点连接,底部每3跨设置一道抛撑。作业层满铺脚手板,外侧加设一道防护栏杆,如图1所示。

(a)

(b)

(c)
图1 防护脚手架示意
(a)脚手架侧立面;(b)脚手架外形;(c)连接构造
2.2 安全网柔性防护措施与连接
2.2.1 安全网铺设
安全网采用100 mm×100 mm双层大孔安全网由下至上连续兜封进行隔离防护,内外层大孔网错开放置,各层大孔网搭接不小于200 mm,并用14号铁丝绑扎牢固。
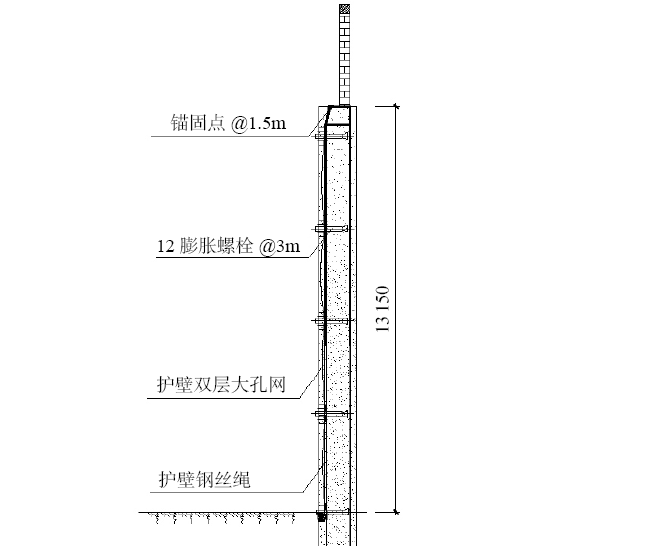
2.2.2 安全网连接
冠梁梁顶采用 12×100膨胀螺栓固定,间距1.5 m,膨胀螺栓下部设L50×5角钢,角钢另一侧预留 25孔洞供 12.5钢丝绳穿过与连接,大孔网与钢丝绳绑扎牢固,连接点间距不大于750 mm。护坡桩中部及底部也均用 12×100膨胀螺栓固定L50×5角钢,间距3 m(图2)。

(a)

(b)

(c)
图2 安全网铺设与连接
(a)侧立面;(b)安全网铺设外形;(c)连接做法
3 质量安全措施
3.1 脚手架搭设安全措施
(1)搭设脚手架时,立杆垂直度及水平度须满足规范要求。
(2)脚手架配件质量与搭设质量应按搭设方案要求进行验收,确认合格后方可使用。
(3)脚手架荷载不得超过设计值,作业层上的施工荷载应符合设计要求,不得超载。模板支架、缆风绳、泵送混凝土和砂浆输送管不得固定在架体上,严禁拆除或移动安全防护措施。
(4)脚手架使用期间,严禁拆除主节点处的纵向及横向水平杆、纵横向扫地杆与连墙件,不得在脚手架附近进行挖掘作业。
3.2 安全网铺设与连接安全措施
(1)钢丝网应由上至下崩紧,不得松散、下坠。
(2)双层大孔网应错开50 mm,搭接长度不得小于200 mm。
(3)锚固点与大孔网连接应牢固,间距一致,上下左右须在一条直线上。
来源:建筑技术杂志社公众号
如有侵权请联系删除