行业动态
连载丨采用自动化加载系统进行地基基础加固技术(1)
来源:admin 浏览量: 发布时间:2024-09-19 16:32:23
随着我国在改革开放后大规模工程建设的开展和对老旧房屋改造的需求,大量的既有建筑物需要进行加固以满足承载能力、正常使用以及耐久性等要求。在既有建筑物改造加固过程中,随着使用功能、空间需求及上部结构荷载等的改变,上部结构及地基基础形式随之改变,地基基础须采取相应加固处理措施以提高其承载能力,并满足其安全使用的要求。
锚杆桩是目前地基基础加固工程中常用的一种地基基础加固方法,但是,既有建筑物采用锚杆桩进行地基基础加固过程中,原基础承受上部原结构荷载为恒定值,新增锚杆桩基础在施工过程中承受不断增加的上部结构荷载,使新增锚杆桩基础发生较大沉降,与原基础产生较大沉降差,易导致房屋出现裂缝、倾斜和结构损坏等安全问题,严重影响房屋的承载能力、正常使用以及耐久性能。因此需要设计相应的技术方案解决上述问题。
1 工程概况
工程为某市政府办公楼,建造时间为1956年,为历史建筑。在1984年由合肥市建筑工程设计室对大楼重新外装饰设计,东西两端原4层加至5层,并进行了局部加固设计。该建筑物为砖混结构,共5层(局部6层),主体高度18.90m,基础为条形基础,墙体材料为烧结普通砖,楼板为现浇楼板,室内外高差0.9m。首层层高4.0m,2~5层层高3.5m,局部6层层高3.2m。
工程为某文物保护工程,外墙仍需保留原貌。改造后使用功能为城市记忆馆,因原砖混结构的小开间已不能满足使用要求,内部需要大开间,为保留历史原貌和利用内部空间活化,故为结构进行改造加固,具体内容如下。
(1)结构体系改变,原砖混结构改为钢框架-中心支撑结构(内部钢框架+外围护墙)。
(2)基础形式改变,原条形基础改为桩基础(桩基础包含承台和杯口,保留的外围护墙采用原有条形基础)。
(3)外墙受力形式改变,原外墙为砖混结构的承重墙改为框架结构的自承重墙,该外墙内外侧均采用高延性混凝土加固,且在楼层处采取拉杆与楼板拉结。
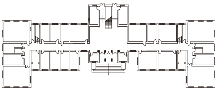
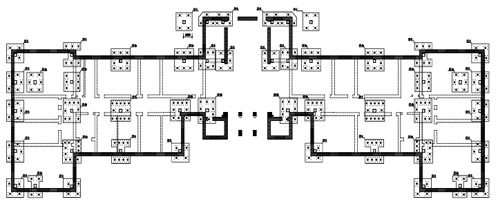
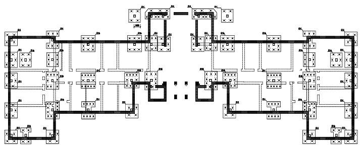
改造加固前的平面布置,如图1所示。改造加固后的平面布置,如图2所示。

图1 改造加固前平面布置示意

图2 改造加固后平面布置示意
根据钻探资料,场地勘察深度范围内地层结构简单,层序清晰。第1层杂填土:杂色,湿,呈松散至稍密状态,主楼底部普遍分布,估计为早期老楼换填基础,局部夹砖块和砂等建筑垃圾填充,均匀性较差,属高压缩性土。经现场补勘,在原大放脚基础底标高下分布约3m厚毛石层。第2层粉质粘土:灰黄、灰褐色,湿,呈软塑至可塑状态,属中等偏高压缩性土。第3层粉土夹砂。灰黄、青灰色,湿,呈松散至稍密状态,含氧化物、石英等矿物质,局部夹砂,属中等偏高压缩性土。第4层粉土夹砂:灰黄、青灰色,湿,呈中密状态,局部密实,属中等压缩性土。第5层粉土:灰黄、青灰色,湿,呈大部分密实状态,属中等偏低压缩性土。第6层中风化泥质砂岩:灰红色,稍湿,岩芯呈长柱状,岩芯较完整,泥质胶结,胶结较致密,中厚层状构造,含石英、云母等矿物成分,属微压缩性中风化极软岩,此层未揭穿。
2 地基基础加固方案
项目基础加固方案采用新增承台锚杆静压钢管桩,为上部结构提供抗力。根据上部总荷载,结合新增钢结构体系的箱形钢柱柱底反力及保留的外围护墙的墙底反力,新增锚杆静压钢管桩数量确定为294根,单桩承载力特征值取Ra=350kN。新增锚杆静压钢管桩及承台平面布置如图3所示。采用的钢管桩规格为直径 219×10mm,桩内灌注C35等级混凝土,钢材强度等级为Q235B,长度为16m,进入第6层中风化泥质砂岩层。压桩时采用压桩力(2.0倍Ra)和桩长双控的原则,以达到为上部结构提供足够承载力的目的。

图3 新增锚杆静压钢管桩及承台平面布置示意
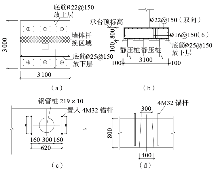
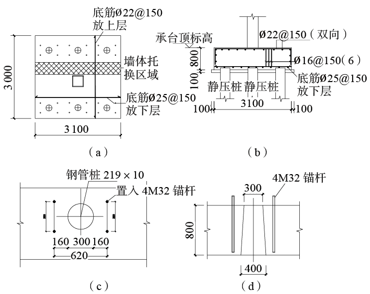
新增桩基础的承台以长度、宽度、高度分别为3100mm、3000mm、800mm为例进行说明,其中长度方向为沿原墙体长度方向。承台底部采用双向钢筋,长度方向配筋为直径25@150mm,置于下层,宽度方向配筋为直径22@150mm。承台顶部采用双向钢筋,配筋均为直径20@150mm。承台两个方向均配置直径16@150mm的箍筋(6肢箍)。承台内预留锚杆静压钢管桩的桩孔,桩孔上口直径300mm,下口直径400mm,并在预留桩孔四周预埋8根直径22mm补强钢筋。在预留桩孔的两侧各预埋2根M32的反力锚杆,反力锚杆选用高强精轧钢PSB1080,锚固长度750mm。新增桩基础承台如图4所示。

图4 新增桩基础承台示意
(a)平面1;(b)立面1;(c)平面2;(d)立面2
新增杯口以高度1.1m,长度、宽度均为1200mm,杯口长度、宽度均为400mm为例进行说明。沿杯口四周的竖向双层配筋为直径 22@150mm,锚入至承台底部弯折15 °锚固。沿杯口四周的水平向双层配筋为直径16@150mm。新增杯口基础如图5所示。

图5 新增杯口基础示意
摘自《建筑技术》2023年3月,付建斐,李今保,姜帅,张龙珠