行业动态
连载丨应急项目加强型装配式基础施工技术(1)
来源:admin 浏览量: 发布时间:2025-02-20 14:29:40
1 工程概况
北京某重大活动应急项目总占地面积42700m2,总建筑面积41438m2;项目由10栋客房楼,2栋服务楼,2栋办公楼,1栋缓冲区,1栋接待中心,1栋垃圾暂存组成,共1802个尺寸为6055mm×2990mm×2896mm的模块化箱体,包含应急客房1172间,服务用房314间,功能用房184间。其中客房楼、服务楼和办公楼地上3层,其余单体地上1层,无地下室;以上各单体为框架叠拼结构形式,建筑结构安全等级为三级,抗震等级四级,主体结构设计工作年限5年。为满足本应急保障项目体量大、时间紧与任务重的要求,各建筑单体基础采用加强型装配式地基基础结构形式,具有施工效率高、适应性强、对土体和环境无破坏、便于日后拆除和土体覆绿等特点。
2 加强型装配式地基基础结构形式介绍
2.1 加强型装配式地基基础结构形式
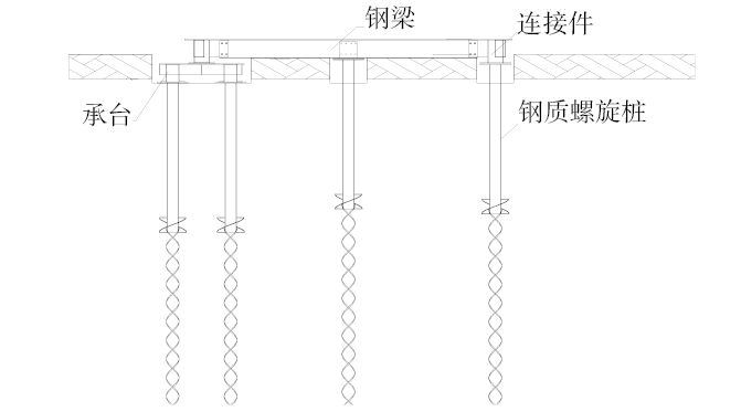
以本工程单体办公楼为例,其采用的加强型装配式地基基础由钢制螺旋桩、连接件、承台、钢梁4部分主要构件组成,若干平行设置的主梁、次梁和钢制螺旋桩为主要受力构件。钢制螺旋桩通过端部法兰与承台下表面法兰螺栓固定连接,相邻的主梁及主梁与次梁间通过连接件安装连接,螺栓穿过连接件侧板上的螺栓孔并与钢梁侧板上的横梁螺母固定连接。
该加强型地基采用全框架结构,钢制螺旋桩和钢梁均通过承台与连接件拼接而成,组装方便快捷且结构稳定性好,可避免因承重过大而发生扭曲和折弯,保证系统的稳定性和安全性,加强型装配式地基基础效果如图1所示。

图1 加强型装配式地基基础效果
2.2 钢制螺旋桩
钢制螺旋桩是一种新型的基础建筑形式,是替代传统钢筋混凝土浇筑施工工艺的解决方案,省去了地面平整,废土处理及挖掘等施工工序,降低了施工成本,使基础建造更加灵活,具有安装简单、方便、施工周期短,对水资源依赖性低,受环境变化影响小,不破坏天然土壤环境,易于收回、迁移等特点。
本工程所用钢制螺旋桩(扁钢桩)由法兰、热锻管体及螺旋片组成,法兰焊接在管体上,然后整体热镀锌处理,材质为热镀锌Q235B、Q355B,可根据单支螺旋桩承载需求结合地基承载力选用60、76、89、114、140等不同规格,适用于常规、湿陷性黄土、密实度较高的土质和戈壁滩、冻土等土质;其安装施工便捷,可选择40–60型挖掘机破碎头震动打桩、便捷式打桩和人工旋桩。钢制螺旋桩(扁钢桩)因其特殊形状具备抗拉拔力和插入抓地力两种优势,在具有垂直方向作用力的同时可以回旋,因此土壤不会松乱,最大化利用土壤本身条件。钢制螺旋桩(扁钢桩)效果如图2所示。

图2 钢制螺旋桩(扁钢桩)效果
2.3 承台
承台包括支撑平台、设置在其中心的连接盘及等间距设置的至少两个用以与钢制螺旋桩连接的安装座,各安装座由凸出支撑平台底面的安装柱及设置在其端部的法兰组成。
承台主要作用为固定并螺栓连接钢制螺旋桩和上部钢梁,并通过连接件将上部结构荷载传递至钢制螺旋桩。安装在连接盘上的钢梁同时由多个钢制螺旋桩固定并通过支撑平台形成相互配合,安装方便,且可使承载力大幅增加。
承台由材质为Q235B、Q355B的热镀锌钢板、80×6/10扁钢、无缝管及200mm×8mm法兰焊接而成,规格可定制,常规主要有二桩660mm×300mm×8mm、四桩800mm×800mm×10mm、六桩1000mm×1000mm×12mm、八桩1200mm×1200mm×14mm等形式,可根据单套桩基承台承载需求结合地基承载力选用。承台平面如图3所示。

图3 承台平面示意
2.4 钢梁
钢梁为几字形,分为主梁和次梁,材质为Q235B、Q355B,表面镀锌或镀锌铝镁275 g/m2处理,主次梁常规规格分别为148 mm×90 mm×2.3 mm与148 mm×90 mm×1.2 mm;主梁用于承载力较大位置和支撑墙体钢梁,次梁主要用于布局空间承载,常规布置间距610 mm,可根据承载来选择次梁间距。冷压成型几字形钢梁两侧腹板滚压筋肋可以起到更好的承载力和稳定作用,在梁与梁进行横向纵向搭接时,其翼缘可以起到更好地承载作用。次梁的设置对地基基础结构进行进一步的加固,提高整体结构的稳定性和强度。钢梁效果如图4所示。

图4 钢梁效果
2.5 连接件
连接件分为和主连接件和U形连接件,材质为Q235B、Q355B,表面镀锌或镀锌铝镁275 g/m2处理。主连接件由底部法兰、顶部钢板和四向方钢管焊接组成,其底部法兰与承台法兰连接,方钢管与主梁连接,主要用于横、纵向主梁间的连接;U形连接件主要用于横、纵向主梁与次梁的一字形和T字形连接。U形连接件一字形连接时下部连接件与钢制螺旋桩头螺栓连接,上下部连接件通过自攻螺丝紧固于两个相邻的主梁腹板,T字形连接时底部自攻螺丝紧固于主梁腹板,两侧紧固于次梁端部。连接件如图5~图7所示。

图5 主连接件平面示意

图6 U形T字形连接件

图7 U形一字连接件
2.6 其他配件
紧固螺栓:级别为8.8级,表面锌镍合金处理,盐雾试验500h(白锈)。M12×35紧固螺栓主要用于钢质螺旋桩端部与连接件位置,配两个外径32mm、厚度3mm的加大M12垫片,确保紧固螺栓不会陷入法兰和连接件构造槽里,避免螺栓松动,安全更可靠。六角法兰面自钻自攻螺钉:A1022,表面锌镍合金处理,盐雾试验500h(白锈)。M8×25加大了帽檐直径,帽檐与结构接触面做了防松齿条,防止螺钉松动。经剪切力试验其螺钉剪切力可达到20kN,螺钉最佳锁紧力矩18.5N·m。
3 技术方案
以本工程单体办公楼为例,介绍加强型装配式地基基础施工技术的主要内容。
3.1 设计方案
办公楼采用钢质螺旋桩基础有5.05m、3.05m两种桩型,承载力特征值通过试桩确定,5.1m桩的承载力特征值不低于45kN,桩端入砂质粉土~粉砂受力土层深度不小于3m;3.05m桩的承载力特征值不低于25kN,桩端入受力土层深度不小于1m。钢制螺旋桩及加长桩如图8所示。

图8 钢制螺旋桩及加长桩示意
办公楼区域钢质螺旋桩、承台、连接件及钢梁的平面与断面设置如图9~图13所示。

图9 钢质螺旋桩平面布置示意

图10 承台布置示意

图11 连接件布置示意

图12 钢梁布置示意

图13 加强型装配式地基基础断面示意
3.2 细部节点
钢质螺旋桩、承台、连接件及钢梁部位采用紧固螺栓和自攻螺钉连接,具体节点构造做法如图14所示。

图14 钢质螺旋桩桩顶连接节点构造示意
钢质螺旋桩施工完成后,应采用细沙或素土填实桩与土体间的间隙,顶部采用不小于200mm厚的素混凝土封闭防水,桩顶封闭作法如图15所示。

图15 桩顶封闭作法示意
3.3 选用材料
办公楼应用钢制螺旋桩(扁钢桩)、承台、钢梁、连接件及相关配件规格参数见表1。
表1 规格参数

摘自《建筑技术》2023年12月,李春辉,王岩,孙军令,马靖原,崔庆军